一、基本要求
(一)配电箱(柜)的生产制造应符合《低压成套开关设备和控制设备》第四部分GB7251.4 对建筑工地用成套设备(ACS)的特殊要求及《施工现场临时用电安全技术规范》JGJ46-2005 的标准要求。
(二)配电箱(柜)、开关箱安装使用应符合《施工现场临时用电安全技术规范》JGJ46-2005 标准及《用电安全导则》GB/T13869 标准化要求。
(三)配电箱(柜)、开关箱应分设N 线、PE 线端子板,进出线必须通过端子板做可靠连接。N 线端子板必须与金属电器安装板绝缘;PE 线端子板必须与金属电器安装板做电气连接。进出线中的N 线必须通过N 线端子板连接;PE 线必须通过PE 线端子板连接。PE 线与端子板连接必须采用电气连接,电气连接点的数量应比箱体内回路数量多2 个,1 个为PE 线进箱体的连接点,1 个为重复接地的连接点。
(四)电器元件应选用符合GB/4048.2-2001、GB6829以及JGJ46-2005 标准的产品,并符合建设部“十一五”推广应用技术要求。
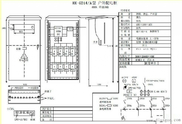
二、总配电箱(柜)
内设400A-630A 具有隔离功能的DZ20 型透明塑壳断路器作为主开关,分路设置4-8 路采用具有隔离功能的DZ20 系列160A-250A 透明塑壳断路器,配备DZ20L(DZ15L)或LBM-1系列作为漏电保护装置,使之具有欠压、过载、短路、漏电、断相保护功能,同时配备电度表、电压 表、电流表两组电流互盛器。漏电保护装置的额定漏电动作电流与额定漏电动作时间的乘积不大于30mA.S,选用额定漏电动作电流100-200mA,额定漏电动作时间大于0.1S,其动作时间为延时动作型。一、基本要求
(一)配电箱(柜)的生产制造应符合《低压成套开关设备和控制设备》第四部分GB7251.4 对建筑工地用成套设备(ACS)的特殊要求及《施工现场临时用电安全技术规范》JGJ46-2005 的标准要求。
(二)配电箱(柜)、开关箱安装使用应符合《施工现场临时用电安全技术规范》JGJ46-2005 标准及《用电安全导则》GB/T13869 标准化要求。
(三)配电箱(柜)、开关箱应分设N 线、PE 线端子板,进出线必须通过端子板做可靠连接。N 线端子板必须与金属电器安装板绝缘;PE 线端子板必须与金属电器安装板做电气连接。进出线中的N 线必须通过N 线端子板连接;PE 线必须通过PE 线端子板连接。PE 线与端子板连接必须采用电气连接,电气连接点的数量应比箱体内回路数量多2 个,1 个为PE 线进箱体的连接点,1 个为重复接地的连接点。
(四)电器元件应选用符合GB/4048.2-2001、GB6829以及JGJ46-2005 标准的产品,并符合建设部“十一五”推广应用技术要求。

总配电柜示意图

总配电柜端子板节点图

总配电柜柜门电气连接节点图

四回路配电柜电气系统图

六回路配电柜电气系统图

三、分配电箱(动力回路与照明回路分路配电)
内设200A-250A 具有隔离功能的DZ20 系列透明塑壳断路器作为主开关(与总配电箱分路设置断路器相适应);采用DZ20 或 KDM-1 型透明塑壳断路器作为动力分路、照明分路控制开关;各配电回路采用DZ20 或KDM-1 透明塑壳断路器作为控制开关;PE 线连线螺栓、N 线接线螺栓根据实际需要配置。

分配电箱示意图

分配电箱PE、N 线端子板节点图

分配电箱箱门电气连接节点图

分配电箱电气系统图
四、开关箱(按一机一闸一漏一箱设置)
(一)电焊机开关箱
内设DZ20-100∕2 系列或KDM1-100∕2(100A、380V)透明塑壳断路器作为控制开关,DZ15LE-100∕2 (DZ20L-100∕2)或LBM-1-100∕2(100 A)漏电断路器,BFGD 系列二次防触电保护器;PE 端子排为3 个接线螺栓。

电焊机开关箱示意图

电焊机开关箱PE 线端子板、箱门电气连接节点图

电焊机电气系统图
(二)塔式起重机开关箱
内设KDM1 或DZ20(63-100A、380V)系列透明塑壳断路器作为控制开关,配置DZ15LE、DZ20L 或LBM-1 系列漏电断路器;PE 线端子排为3 个接线螺栓。

塔式起重机开关箱示意图

塔式起重机开关箱端子板、箱门电气连接节点图

(三)3.0KW 以下用电设备开关箱
内设KDM1 或DZ20(20-40A、380V)透明塑壳断路器作为控制开关,配置DZ15LE、DZ20L 或LBM-1(16-20A)系列漏电断路器,PE 线端子排为4 个接线螺栓。
(四)5.5KW 以上用电设备开关箱
根据所控制设备额定容量选择控制开关及漏电断路器。控制开关为DZ20 或KDM1 系列透明塑壳断路器,漏电断路器为DZ15L、DZ20L 或LBM-1 系列;PE 线接线螺栓为3 个。

设备开关箱示意图

设备开关箱PE 线端子板、箱门电气连接节点图

设备开关箱电气系统图
(五)照明开关箱
内设KDM1 — T/2(20-40A) 断路器, 配置DZ15L —20-40/290 漏电断路器,PE 线螺栓为3 个。

照明开关箱示意图

照明开关箱电气系统图
注:开关箱中漏电断路器必须选择额定漏电动作电流不大于30mA,额定漏电动作时间不大于0.1S,电流速断、电磁式电动机保用产品。总配电箱中漏电断路器应选用配电保护用产品。
五、配电室布置应符合下列要求:
(一)配电柜正面的操作通道宽度,单列布置或双列背对背布置不小于1.5m,双列面对面布置不小于2m;
(二)配电柜后面的维护通道宽度,单列布置或双列面对面布置不小于0.8m,双列背对背布置不小于1.5m,个别地点有建筑物结构凸出的地方,则此点通道宽度可减少0.2m;
(三)配电柜侧面的维护通道宽度不小于1m;
(四)配电室的棚顶与地面的距离不低于3m。
六、配电箱架设应符合下列要求:
(一)固定式配电箱、开关箱箱体中心点与地面垂直距离1.4--1.6m。移动式箱体与地面垂直距离0.8—1.6m。配电箱、开关箱应装设在坚固、稳定的支架上。
(二)配电箱、开关箱在建筑物坠落半径或塔吊臂旋转半径内的必须做双层防护棚,并采取隔离措施。